Návrh revitalizácie areálu včelárskeho náučného chodníka v Nitre

Včelársky náučný chodník je súčasťou areálu Slovenského poľnohospodárskeho múzea v Nitre. V areáli je presunutých viacero historických včelínov predovšetkým zo stredného a západného Slovenska.

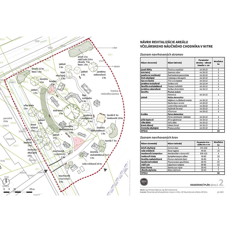
Návrh revitalizácie mal za cieľ: doplniť existujúcu vegetáciu o dreviny a kry, doplniť absentujúci mobiliár, zvýšiť a zlepšiť podmienky včelám a opeľovačom realizáciou lúky a trvalkovým záhonom.

Výber drevín bol zameraný na dreviny a kry atraktívne pre včely a opeľovače, so snahou pokryť vegetačnú sezónu od skorej jari až do jesene. Obdobie jesene budú vypĺňať predovšetkým kvitnúce trvalky v záhone. Viac ako tretinu navrhovaných drevín predstavujú ovocné dreviny ako jabloň, hruška, čerešňa či jarabina oskorušová. Ovocné dreviny zároveň predstavujú významný krajinotvorný prvok v skanzene s budovami starých včelínov, ktorých atmosféra navodzuje vidiecky charakter.

Autorky: Mária Sklenárová,
Michala Poláková – Arden ateliér

Spolupráca: Andrea Urbanová, Slovenský zväz včelárov ZO Nitra

Rok: 2023